Bifamiliare in vendita

Vercelli, Via Giovane Italia - Ospedale
€ 700.000
9 locali 9 locali
425 Mq 425 Mq
2 bagni 2 bagni

Bifamiliare in vendita

Vercelli, Via Giovane Italia - Ospedale

Descrizione annuncio

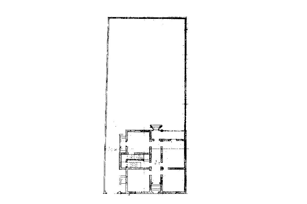
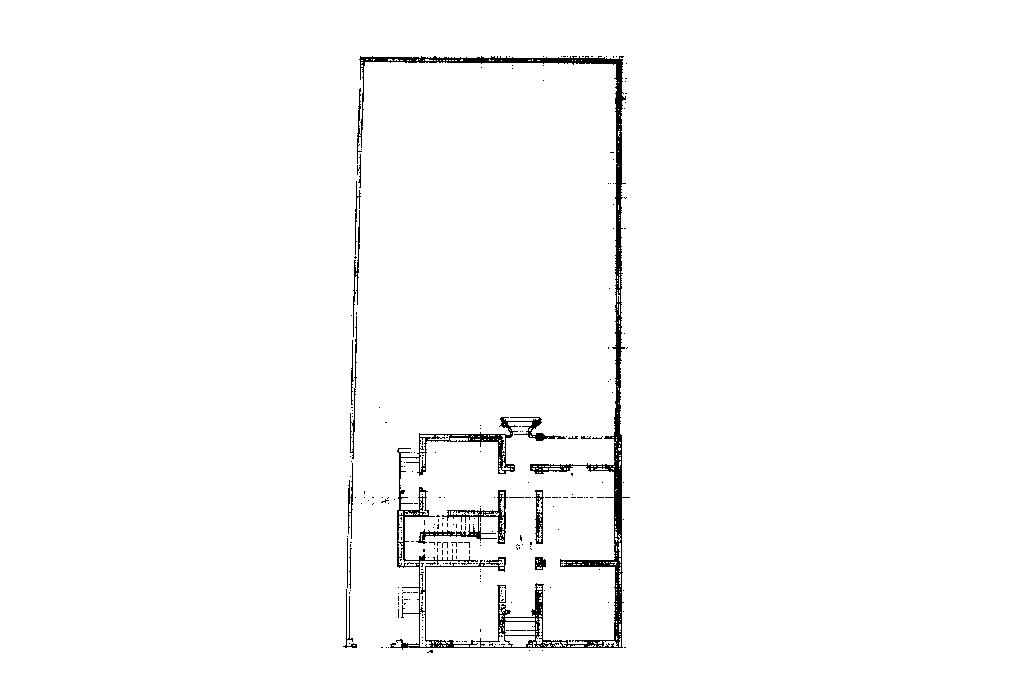
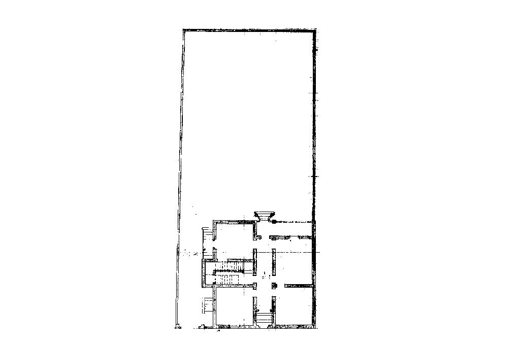
Nel cuore del centro storico di Vercelli, in via Giovine Italia, sorge una prestigiosa casa bifamiliare di circa 425 m² risalente alla fine dell'Ottocento, un raro esempio di architettura Liberty che conserva ancora oggi tutto il fascino e l'eleganza del suo tempo.

Disposta su quattro livelli, questa proprietà unisce spazi generosi, dettagli d'epoca e importanti interventi di manutenzione, tra cui il tetto completamente rifatto.

Al piano seminterrato, una spaziosa cantina con volte in mattoni può essere trasformata in un'ampia taverna perfetta per ricevimenti o momenti conviviali.
Il piano terreno accoglie una zona giorno di rappresentanza: doppio soggiorno con camino, studio, sala da pranzo, cucina abitabile, e un bagno ristrutturato di recente. Da qui si accede al grande cortile interno, ideale per chi cerca privacy e spazi aperti nel cuore della città.

Salendo al primo piano, la zona notte ospita quattro camere da letto di ampie dimensioni e due bagni, con soffitti alti e pavimenti originali che raccontano la storia della casa.
All'ultimo piano, una grande soffitta offre ulteriore spazio da personalizzare perfetta come area hobby, studio o dependance.

Una soluzione unica nel panorama immobiliare vercellese: la posizione centrale, le metrature, il fascino storico e la solidità strutturale rendono questa dimora ideale per chi desidera una residenza di rappresentanza, o per chi cerca un investimento di pregio da convertire in struttura ricettiva o soluzione multifamiliare.

Occasione irripetibile nel cuore di Vercelli una casa d'altri tempi pronta a tornare a splendere.

Mostra tutto

Nelle vicinanze

Trasporto pubblico Trasporto pubblico
stazione di Vercelli
stazione di Vercelli
870 m
Trasporto pubblico
110 m
Largo Brigata Cagliari
Largo Brigata Cagliari
220 m
Ricariche auto elettriche Ricariche auto elettriche
Vercelli Piazza Mazzucchelli | IrenGO – atena
260 m
Municipio di Vercelli | IrenGO – atena
420 m
Piazza Mazzini | IrenGO – atena
670 m
Vercelli Stazione | IrenGO – atena
770 m
Viale della Aeronautica | IrenGO – atena
1,1 Km
Scuole Scuole
Istituto Tecnico Settore Tecnologico "Giulio Cesare Faccio"
180 m
Università del Piemonte Orientale
240 m
Scuola Santa Giovanna Antida
440 m
Scuola Media Statale Gaudenzio Ferrari
510 m
Istituto Professionale Statale Francis Lombardi
600 m
Farmacia Farmacia
Farmacia Moderna
170 m
Garavana Francesco
280 m
Centrale S.N.C.
400 m
Dallari di Viazzo Antonella
470 m
Farmacia Parovina
500 m
Ospedali Ospedali
Ospedale Sant'Andrea
660 m
Clinica Santa Rita
1,1 Km
Supermercati Supermercati
Carrefour Market
160 m
A&O
230 m
Supermercati
400 m
Bio Celia
550 m
iN's
730 m
Negozi Negozi
Il Fornaio
190 m
Intimissimi
250 m
Oltre
260 m
La Convenienza
310 m
Sartoria Di Fratelli
370 m
Bar Bar
Bijou Café
150 m
Twenty
160 m
Bar
340 m
Mio Yogurt
540 m
Wine Caffé Rialto
560 m
Ristoranti Ristoranti
Pizzeria Il Buon Gusto & Pizzò
130 m
Pizzeria Il Buon Gusto & Gold
140 m
Ristorante Pizzeria Sapore di Sale
180 m
Ristorante Pizzeria Da Pupetta
200 m
Pizzeria Bar Liberty
300 m
Mostra tutto

Caratteristiche

Rif.:
61129573
Piano:
3 di 2 (Piano terra con giardino)
Posti auto:
1
Balconi:
3
Camere da letto:
3
Condizionamento:
Assente
Mostra tutto
Prezzo Prezzo
€ 700.000
Rata mutuo Rata mutuo
€ 3.262 / mese
Spese annue Spese annue
€ 0
Proponi il tuo prezzoProponi il tuo prezzo

Classe Energetica

G
G
G
G
G
G
G
G
G
EP globale non rinnovabile:
338.75 kW h/m² anno
EP globale rinnovabile:
84.34 kW h/m² anno
EP invernale del fabbricato:
EP estiva del fabbricato:
Anno di costruzione:
1950
Riscaldamento:
Autonomo
Tipo impianto:
A radiatori
Tipo alimentazione:
Metano

Ti interessa visionare l'immobile?

Fissa un appuntamento  Fissa un appuntamento

Richiedi informazioni

Clicca su Leggi per aprire l'informativa
* Questi campi sono obbligatori

Calcola il tuo mutuo

Semplice e senza impegno
Anticipo

( % )
Mutuo

( % )

pochi semplici passi

inserisci i tuoi dati
Questionario completato
Grazie per aver richiesto un appuntamento senza impegno con un nostro Consulente del Credito e Assicurativo.

Hai inserito correttamente tutti i dati necessari e a breve riceverai una e-mail con un link da convalidare per inviare i tuoi dati.
Affiliato
E Immobiliare Srl
Via San Salvatore, 2 13100 Vercelli (VC)

Il nostro staff


  • Emiliano Cinelli
    Affiliato

  • Luca Bengardino
    Responsabile

  • Marta Baragioli
    Coordinatrice

  • Rebecca Cardinale
    Collaboratrice

  • Adrian Pavalasc
    Collaboratore

  • Riccardo Ruggia
    Collaboratore
Via San Salvatore, 2 13100 Vercelli (VC)
Zona: Vercelli
Mostra su mappa
Orari: Dal Lunedì al Venerdì 9-12.30 & 13.30-18.30 / Sabato 9-12 & 13-17.30
Affiliato
E Immobiliare Srl
Via San Salvatore, 2 13100 Vercelli (VC)

2025 Tecnocasa Franchising S.p.A. - P. IVA 08365160152 - Via Monte Bianco 60/A 20089 Rozzano (MI). Ogni agenzia ha un proprio titolare ed è autonoma. Privacy policy | Policy utilizzo | Cookie policy